Opportunità Immobiliare Cielo-Terra a Gravina in Puglia

Gravina in Puglia (Bari)

Rif: IMMO-125856433
Condividi Linkedin Whatsapp Stampa
€ 745.200
Vendita
Magazzino
621 Mq
Classe energetica Non indicata
Situato in una zona peri-centrale strategica e prettamente residenziale di Gravina in Puglia, tra via Francesco Baracca e via Vittorio Alfieri, proponiamo in vendita un imponente fabbricato cielo-terra indipendente. L'immobile, caratterizzato da un'ottima esposizione e inserito in un contesto ricco di servizi (scuole, attività commerciali e verde pubblico), rappresenta una soluzione ideale per investimenti direzionali o strutture di servizio.
Caratteristiche Principali:
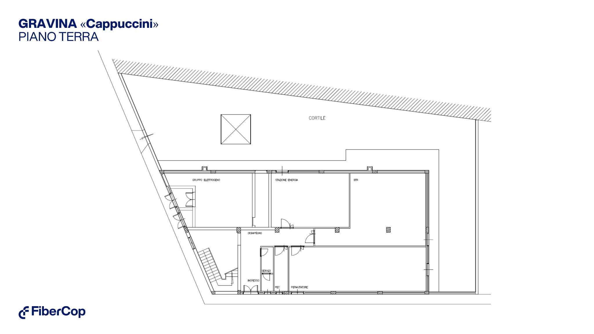
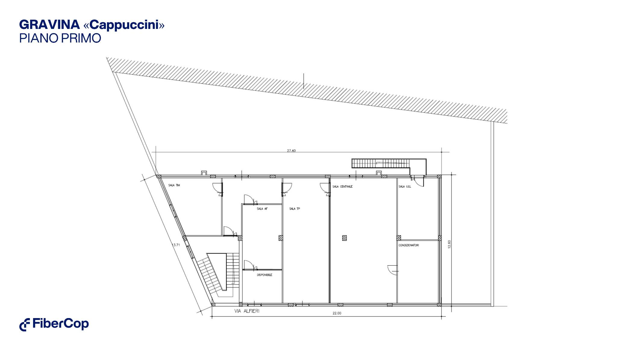
• Consistenza Commerciale: circa 621 mq complessivi.
• Struttura: L'edificio si sviluppa su due piani fuori terra (Piano Terra e Primo Piano) oltre a una terrazza praticabile al secondo piano.
• Area Esterna: Completa la proprietà un'ampia area di pertinenza scoperta di circa 330 mq, ideale per parcheggi o spazi di manovra.
• Stato Manutentivo: Il bene si presenta in stato manutentivo discreto, con finiture interne che includono ampie scalinate in marmo e locali tecnici strutturati.
L'immobile è attualmente destinato a centrale telefonica, con locali ampi e versatili che sono assimilabili a uso ufficio. Dal punto di vista urbanistico, il mappale ricade in Zona Z.T.O. Fabed (Zona Attrezzature e impianti), disciplinata da specifici indici di fabbricabilità e distacchi normativi.
Non esitate a contattarci al numero 0276000069 per maggiori informazioni.

N.B. Le informazioni contenute nell'annuncio non costituiscono elemento contrattuale.

Dettaglio immobile

Contratto Vendita
Rif IMMO-125856433
Prezzo € 745.200
Provincia Bari
Comune Gravina in Puglia
Indirizzo Via Vittorio Alfieri
Superficie 621 mq
Classe energetica Non indicata
Condizioni da ristrutturare
Ascensore no

Consistenze

Descrizione Superficie Sup. comm.
Principali
Magazzino - piano terra 621 Mq 621 Mqc
Totale 621 Mqc

Video

Planimetrie

Richiedi maggiori informazioni

Autorizzazione al trattamento dei dati personali+
Dichiaro di aver letto l'informativa sulla privacy ed accetto le condizioni d'utilizzo del servizio.
Riempi il campo con il codice riportato nell'immagine*
Codice Captcha
Chiamaci Contattaci