Ampio Locale Commerciale nel Cuore di Bologna – Via Fossalta

Bologna - zona Centro Storico

Rif: IMMO-125865849
Condividi Linkedin Whatsapp Stampa
€ 552.000
Vendita
Attività commerciale
200 Mq
3 Vani
Classe energetica G
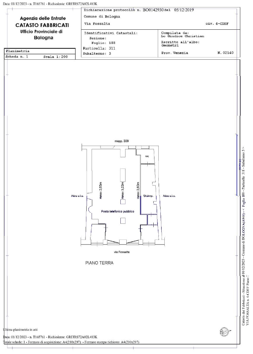
In posizione centralissima a Bologna, proponiamo in vendita un interessante immobile ad uso negozio (categoria catastale C/1) situato in Via Fossalta n. 4-CDEF.
L'unità immobiliare si sviluppa interamente al piano terra di un edificio condominiale e vanta una superficie commerciale di 200 mq. Storicamente adibito a posto telefonico pubblico, il locale offre ampi spazi interni che si prestano a diverse configurazioni commerciali o direzionali.
Caratteristiche principali:
• Ubicazione: Centro storico, in un contesto urbano prestigioso a prevalente destinazione residenziale.
• Consistenza: 200 mq di superficie lorda/commerciale sviluppata su un unico livello.
• Stato attuale: L'immobile è attualmente chiuso e inutilizzato, con ex impianti non attivi, rappresentando un'ottima opportunità di personalizzazione per nuove attività.
• Dati urbanistici: Il fabbricato è di costruzione antecedente al 1967 e non presenta condoni edilizi né vincoli ai sensi del D. Lgs. 42/2004. Nel corso degli anni è stato oggetto di regolari interventi edilizi autorizzati (1970, 1986, 1994).
Prezzo di mercato: Eu. 552.000

Non esitare a contattarci al numero 0276000069 per maggiori informazioni.
N.B. Le informazioni contenute nell'annuncio non costituiscono elemento contrattuale.

Dettaglio immobile

Contratto Vendita
Rif IMMO-125865849
Prezzo € 552.000
Provincia Bologna
Comune Bologna
Zona Centro Storico
Indirizzo Via Fossalta 4
Superficie 200 mq
Vani 3
Classe energetica G (DL 90/2013)
EPgl,nren 65 kwh/m2 anno
Condizioni da ristrutturare
Ascensore no

Consistenze

Descrizione Superficie Sup. comm.
Principali
Negozio - piano terra 200 Mq 200 Mqc
Totale 200 Mqc

Video

Planimetrie

Richiedi maggiori informazioni

Autorizzazione al trattamento dei dati personali+
Dichiaro di aver letto l'informativa sulla privacy ed accetto le condizioni d'utilizzo del servizio.
Riempi il campo con il codice riportato nell'immagine*
Codice Captcha
Chiamaci Contattaci