Capannone indipendente con ampia area esterna

Messina - zona Castanea - Salice

Rif: IMMO-125867807
Condividi Linkedin Whatsapp Stampa
€ 623.520
Vendita
Magazzino
515 Mq
Classe energetica Non indicata
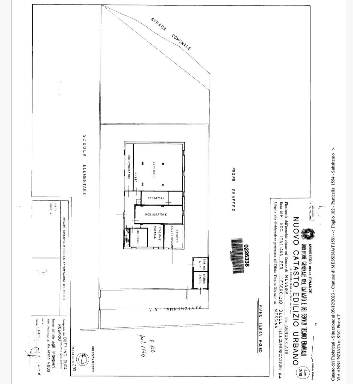
In vendita a Messina, in Via Annunziata, immobile indipendente a destinazione produttiva / artigianale (cat. D/7), inserito in un contesto facilmente accessibile e ben collegato.

Il fabbricato si sviluppa su un unico livello ed è circondato da una vasta area esterna di pertinenza, ideale per spazi di manovra, carico/scarico o parcheggio.
La superficie commerciale complessiva è di circa 515 mq, di cui oltre 440 mq coperti, oltre a 1.500 mq di area esterna.

L'immobile risulta libero, caratteristica che lo rende particolarmente interessante sia per utilizzo diretto sia come operazione di investimento.
La struttura è indipendente, con accessi carrabili, ed è adatta a molteplici utilizzi compatibili con la destinazione urbanistica.

Soluzione rara per metrature e spazi esterni, in una zona dove immobili comparabili sono poco presenti sul mercato.

Per maggiori informazioni o per fissare una visita, contattaci al numero 0276000069.

N.B. Le informazioni contenute nell'annuncio non costituiscono elemento contrattuale.

Dettaglio immobile

Contratto Vendita
Rif IMMO-125867807
Prezzo € 623.520
Provincia Messina
Comune Messina
Zona Castanea - Salice
Indirizzo Via Annunziata Castanea delle Furie
Superficie 515 mq
Classe energetica Non indicata
Condizioni da ristrutturare
Ascensore no

Consistenze

Descrizione Superficie Sup. comm.
Principali
Magazzino - 1° piano 515 Mq 515 Mqc
Totale 515 Mqc

Video

Planimetrie

Richiedi maggiori informazioni

Autorizzazione al trattamento dei dati personali+
Dichiaro di aver letto l'informativa sulla privacy ed accetto le condizioni d'utilizzo del servizio.
Riempi il campo con il codice riportato nell'immagine*
Codice Captcha
Chiamaci Contattaci