Opportunità Immobiliare Strategica a San Lazzaro di Savena

San Lazzaro di Savena (Bologna)

Rif: IMMO-125885947
Condividi Linkedin Whatsapp Stampa
€ 430.000
Vendita
Magazzino
302 Mq
Classe energetica Non indicata
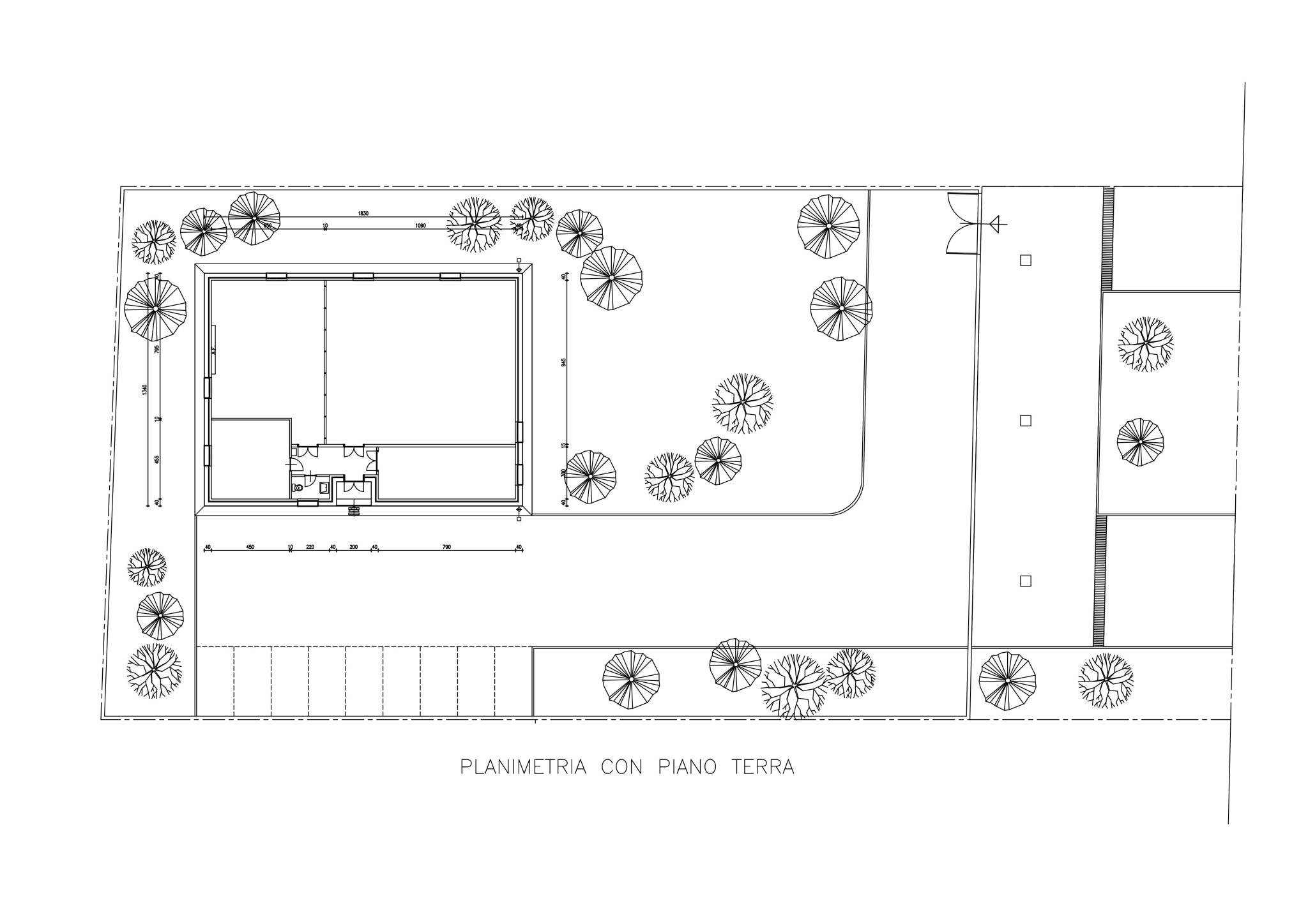
Proponiamo in vendita un asset immobiliare indipendente situato in Via Carlo Jussi 115, nel Comune di San Lazzaro di Savena, in una zona a prevalente carattere residenziale situata a circa 8 km dal centro storico di Bologna. L'immobile è costituito da un corpo di fabbrica a pianta rettangolare che si sviluppa interamente su un unico piano fuori terra, garantendo estrema praticità d'accesso e gestione. La proprietà vanta un'eccezionale area scoperta di pertinenza di 2.000 mq, ideale per manovre, deposito o futuri sviluppi, che circonda l'intero edificio. Con una superficie commerciale complessiva di circa 302 mq, l'interno è attualmente organizzato per ospitare funzioni tecnologiche e direzionali. Gli spazi comprendono:
• Un vano d'ingresso e ampi locali tecnologici (già adibiti a centrale telefonica, locale batterie e autocommutatore) per circa 228 mq lordi
• Spazi connettivi orizzontali
• Un servizio igienico (WC) dedicato.
L'asset, censito catastalmente nella categoria D/1, presenta una struttura solida con finiture esterne in mattoni a vista ed è interamente delimitato da una proprietà recintata. Lo stato manutentivo generale è giudicato sufficiente, rappresentando una base ideale per interventi di riqualificazione o adattamento a nuove esigenze operative. Prezzo di Stima: Eu. 430.000.
Non esitate a contattarci al numero 02 76000069.
N.B. Le informazioni contenute nell'annuncio non costituiscono elemento contrattuale.

Dettaglio immobile

Contratto Vendita
Rif IMMO-125885947
Prezzo € 430.000
Provincia Bologna
Comune San Lazzaro di Savena
Indirizzo Via Carlo Jussi 115
Superficie 302 mq
Classe energetica Non indicata
Condizioni da ristrutturare
Ascensore no

Consistenze

Descrizione Superficie Sup. comm.
Principali
Magazzino - piano terra 302 Mq 302 Mqc
Totale 302 Mqc

Video

Planimetrie

Richiedi maggiori informazioni

Autorizzazione al trattamento dei dati personali+
Dichiaro di aver letto l'informativa sulla privacy ed accetto le condizioni d'utilizzo del servizio.
Riempi il campo con il codice riportato nell'immagine*
Codice Captcha
Chiamaci Contattaci