Complesso Produttivo Indipendente con Esterno a Venezia

Venezia - zona Trivignano - Gatta

Rif: IMMO-125886567
Condividi Linkedin Whatsapp Stampa
€ 430.000
Vendita
Magazzino
1147 Mq
Classe energetica Non indicata
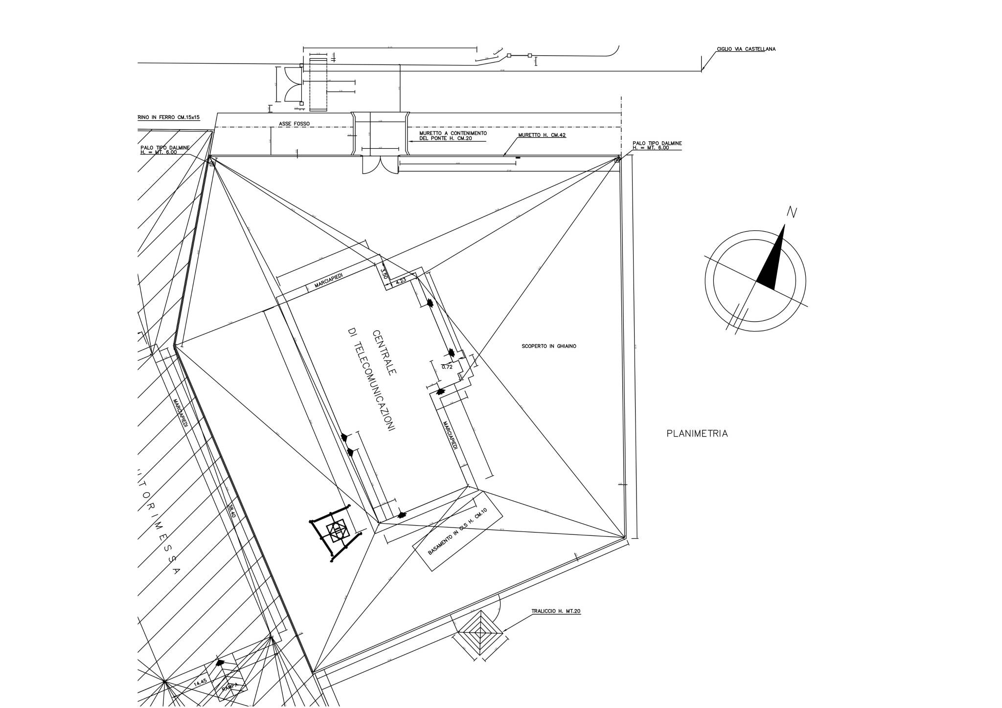
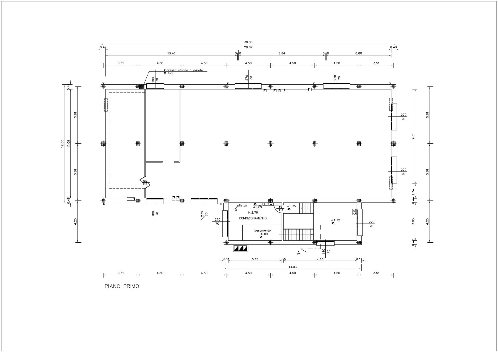
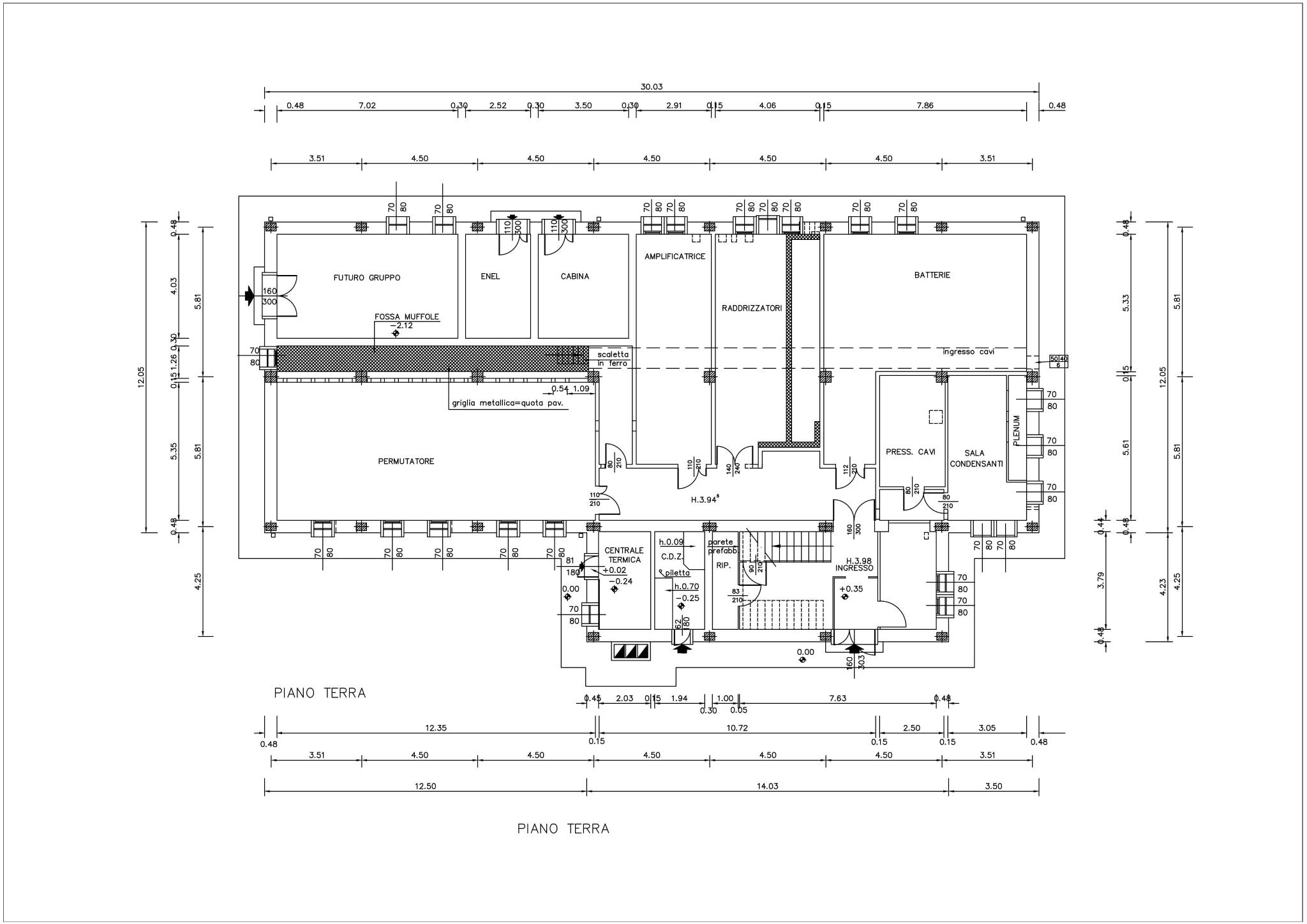
Proponiamo in vendita un fabbricato situato in una posizione strategica nella zona periferica di Venezia, in una traversa di Via Castellana (SR245). L'immobile, che gode di totale indipendenza, si trova a circa 17 km dal centro di Venezia e a soli 200 metri dal principale asse viario della zona, garantendo una discreta accessibilità per i mezzi privati. L'asset si sviluppa su una superficie lorda complessiva di 7.210 mq, con una superficie commerciale totale di circa 1.147 mq. Il fabbricato principale si articola su due piani fuori terra ed è così composto: • Piano Terra: Spazi ad uso industriale/centrale telecomunicazioni e cabina tecnica per circa 414 mq complessivi. • Primo Piano: Ulteriori locali ad uso industriale per circa 414 mq. La proprietà vanta un'estesa area esterna di pertinenza di oltre 6.300 mq (suddivisa in due particelle da 5.432 mq e 950 mq), ideale per manovre, stoccaggio o parcheggio. L'edificio presenta una struttura portante a telaio in cemento armato con copertura a falde. Le finiture interne sono di grado medio, caratterizzate da pavimenti in gres porcellanato e serramenti interni in legno. Dettagli dell'Investimento: • Destinazione d'uso attuale: Produttiva (Catastale D/1). • Superficie Commerciale: 1.147 mq. • Prezzo di riferimento (Market Value): Eu. 430,000. • Dati catastali: Comune di Venezia, Foglio 116, Particella 581 sub 3-5-12. Questa soluzione è particolarmente indicata per attività che necessitano di indipendenza, ampi spazi esterni e un collegamento rapido alla viabilità regionale. Non esitare a contattarci al numero 0276000069 per maggiori informazioni. N.B. Le informazioni contenute nell'annuncio non costituiscono elemento contrattuale.

Dettaglio immobile

Contratto Vendita
Rif IMMO-125886567
Prezzo € 430.000
Provincia Venezia
Comune Venezia
Zona Trivignano - Gatta
Indirizzo Via Castellana 177B
Superficie 1147 mq
Classe energetica Non indicata
Condizioni da ristrutturare
Ascensore no

Consistenze

Descrizione Superficie Sup. comm.
Principali
Magazzino - piano terra 1.147 Mq 1.147 Mqc
Totale 1.147 Mqc

Video

Planimetrie

Richiedi maggiori informazioni

Autorizzazione al trattamento dei dati personali+
Dichiaro di aver letto l'informativa sulla privacy ed accetto le condizioni d'utilizzo del servizio.
Riempi il campo con il codice riportato nell'immagine*
Codice Captcha
Chiamaci Contattaci