Fabbricato Indipendente con Area Esterna a Verona

Verona - zona San Massimo - Croce Bianca

Rif: IMMO-125915159
Condividi Linkedin Whatsapp Stampa
€ 270.000
Vendita
Magazzino
641 Mq
Classe energetica Non indicata
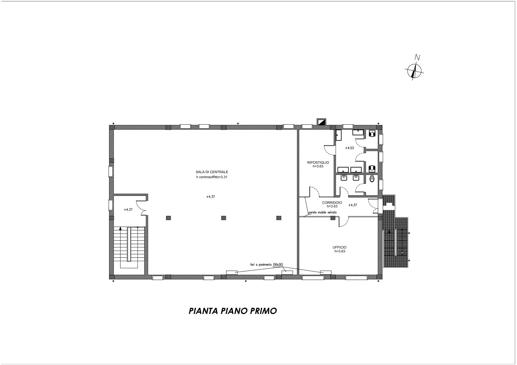
Proponiamo in vendita un fabbricato isolato cielo-terra situato nel quartiere di San Massimo, in Via Innocenzo Liruti. L'immobile, caratterizzato da una struttura portante in telaio di cemento armato e copertura a falde, si sviluppa su due piani fuori terra ed è attualmente destinato ad uso produttivo (categoria catastale D/1).
L'asset vanta una superficie commerciale complessiva di 641 mq (a fronte di una superficie lorda di 1.338 mq). La distribuzione degli spazi interni è così suddivisa:
• Piano Terra (282 mq lordi): Locali ad uso industriale/produttivo.
• Primo Piano (282 mq lordi): Ulteriori spazi operativi.
• Area Esterna: La proprietà è circondata da un'area di pertinenza esclusiva di circa 774 mq, ideale per manovre o parcheggio.
Lo stato di manutenzione generale, sia interno che esterno, è giudicato sufficiente. Le finiture interne sono di grado medio, con pavimentazioni in cemento e serramenti in legno, mentre la dotazione impiantistica è in linea con la tipologia dell'edificio. L'immobile è attualmente libero da contratti di locazione.
L'edificio si trova in una zona periferica ad ovest di Verona (circa 8 km dal centro), inserito in un tessuto edilizio consolidato a prevalente destinazione residenziale. La location offre:
• Accessibilità discreta: a soli 500 metri dal principale asse viario della zona, Via Stanga.
• Collegamenti: la stazione ferroviaria di Verona Porta Nuova dista circa 7 km.
• Servizi: la zona è servita da diverse attività di prima necessità.
Non esitare a contattarci al numero 0276000069 per maggiori informazioni.

N.B. Le informazioni contenute nell'annuncio non costituiscono elemento contrattuale.

Dettaglio immobile

Contratto Vendita
Rif IMMO-125915159
Prezzo € 270.000
Provincia Verona
Comune Verona
Zona San Massimo - Croce Bianca
Indirizzo Via Innocenzo Liruti 7
Superficie 641 mq
Classe energetica Non indicata
Condizioni da ristrutturare
Ascensore no

Consistenze

Descrizione Superficie Sup. comm.
Principali
Magazzino - piano terra 641 Mq 641 Mqc
Totale 641 Mqc

Video

Planimetrie

Richiedi maggiori informazioni

Autorizzazione al trattamento dei dati personali+
Dichiaro di aver letto l'informativa sulla privacy ed accetto le condizioni d'utilizzo del servizio.
Riempi il campo con il codice riportato nell'immagine*
Codice Captcha
Chiamaci Contattaci